dadblk3 madblk3
adblk3
adblk3
地產
出版:2023-Mar-28 16:37
更新:2023-Mar-28 16:37

新盤樓書|何文田瑜一第1C期涉214伙 面積最大1213方呎四房

分享:
新盤樓書|何文田瑜一第1C期涉214伙 面積最大1213方呎四房

新盤樓書|何文田瑜一第1C期涉214伙 面積最大1213方呎四房

adblk4

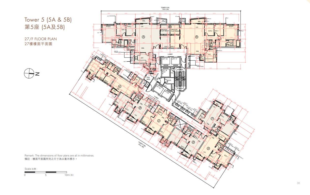
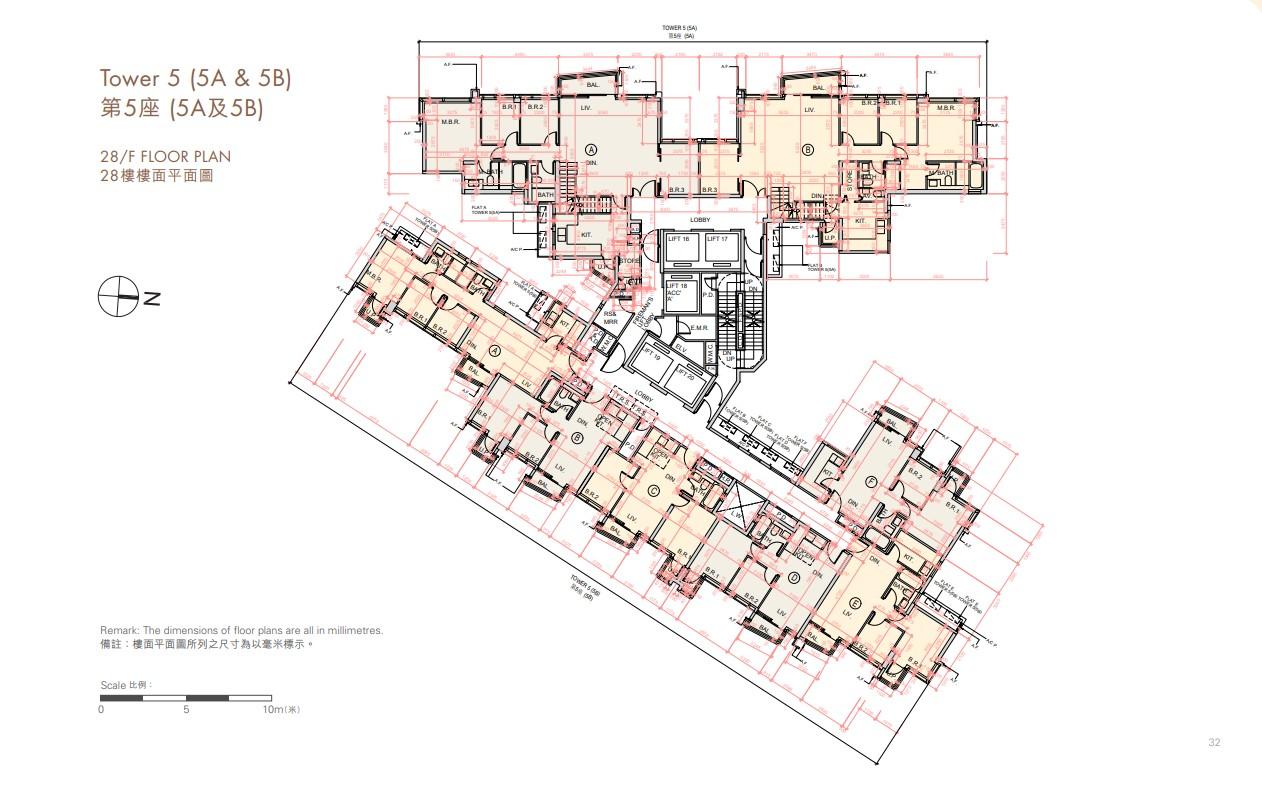
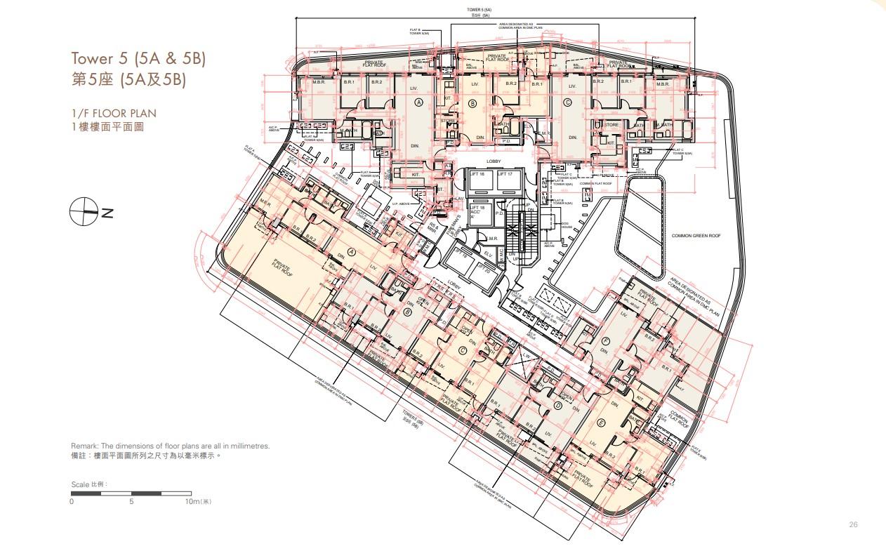
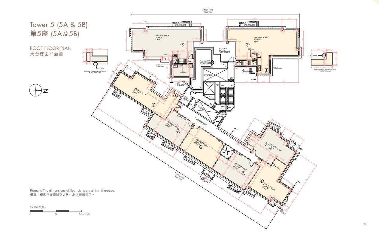
位於何文田忠孝街1號、由華懋集團與港鐵(066)合作發展的何文田站上蓋瑜一,分3期發展,當中第1C期已上載售樓說明書,位處整個發展項目北面,涉及一座住宅大樓,細分為5A5B座,提供214伙,單位實用面積介乎4231,213方呎,戶型涵蓋兩房至四房。

根據樓書顯示,第5A座標準樓層一層設有3伙,備兩部升降機;而第5B座一層設有6伙,備兩部升降機。

單位戶型分布方面,兩房佔142伙,三房佔68伙,而四房則涉4伙。兩房實用面積介乎423576方呎;三房實用面積介乎619934方呎;四房實用面積介乎1,2071,213方呎。

adblk5

新盤樓書|何文田瑜一第1C期涉214伙 面積最大1213方呎四房 新盤樓書|何文田瑜一第1C期涉214伙 面積最大1213方呎四房 新盤樓書|何文田瑜一第1C期涉214伙 面積最大1213方呎四房 新盤樓書|何文田瑜一第1C期涉214伙 面積最大1213方呎四房 新盤樓書|何文田瑜一第1C期涉214伙 面積最大1213方呎四房 新盤樓書|何文田瑜一第1C期涉214伙 面積最大1213方呎四房 新盤樓書|何文田瑜一第1C期涉214伙 面積最大1213方呎四房 新盤樓書|何文田瑜一第1C期涉214伙 面積最大1213方呎四房 新盤樓書|何文田瑜一第1C期涉214伙 面積最大1213方呎四房 新盤樓書|何文田瑜一第1C期涉214伙 面積最大1213方呎四房 新盤樓書|何文田瑜一第1C期涉214伙 面積最大1213方呎四房 新盤樓書|何文田瑜一第1C期涉214伙 面積最大1213方呎四房 新盤樓書|何文田瑜一第1C期涉214伙 面積最大1213方呎四房

面積最細423方呎

全盤面積最細為第5B座的1B室,實用面積423方呎,兩房開放式廚房間隔,連134方呎平台。標準戶面積最細為第5B座的B室,實用面積461方呎,兩房開放式廚間隔。

至於全盤最大面積分別為第5A27A室,實用面積1,213方呎,連51方呎平台;以及第5A座的28A室,實用面積1,213方呎,連820方呎天台,兩伙均屬四房一套連儲物房間隔。

該盤預計關鍵日期為202555日,樓花期長約26個月。

即睇何文田瑜一第1C期最新資訊 (House730)

ADVERTISEMENT

ad

恭喜你!獲取1分 !

更多積分任務