dadblk3 madblk3
adblk3
adblk3
地產
出版:2023-Jun-27 19:25
更新:2023-Jun-27 19:25

新盤樓書|港島南岸海盈山第4A期面積351至1847方呎 標準戶主攻兩房

分享:
新盤樓書|港島南岸海盈山第4A期面積351至1847方呎 標準戶主攻兩房

新盤樓書|港島南岸海盈山第4A期面積351至1847方呎 標準戶主攻兩房

adblk4

位於黃竹坑香葉道11號、由嘉里建設(683)、信和置業(083)、太古地產(1972)及港鐵(066)合作發展的黃竹坑站港島南岸第4期「海盈山」分兩期發展,其中第4A期已上載售樓說明書,提供432伙,預計入伙日期為2025315日。

兩房佔標準戶逾六成

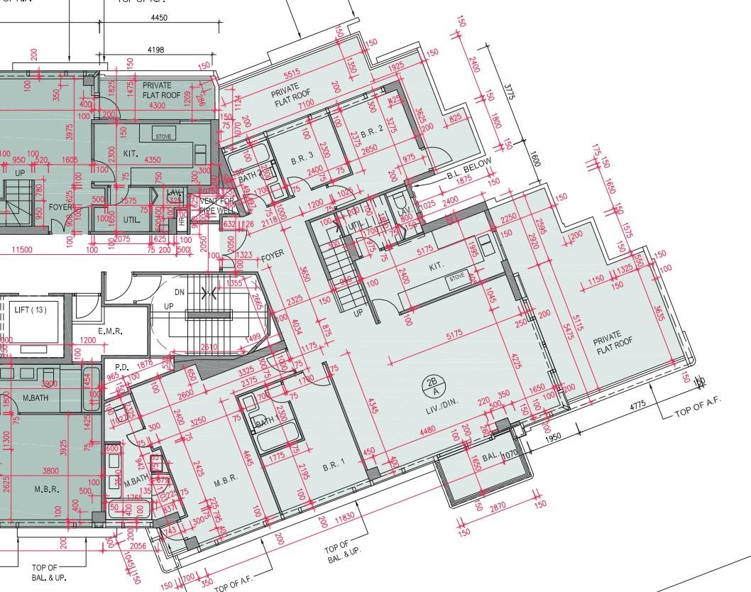
據樓書顯示,第4A期由第2座一幢住宅大樓組成,細分為2A2B兩個分翼,提供432伙。單位實用面積介乎3511,847方呎,間隔涵蓋一房至四房,當中416伙標準戶涉及一房至三房,一房提供48伙或約12%,實用面積由389403方呎;兩房佔272伙或約65%,實用面積由486680方呎,戶型包括兩房開放式廚房、兩房梗廚、兩房連士多房及兩房一套連士多房;三房涉96伙或約23%,實用面積由658915方呎,戶型包括三房一套開放式廚房及三房一套加工作間連洗手間。此外,項目5樓及43樓提供連花園或天台特色單位,合共16伙,實用面積3511,847方呎。

adblk5

新盤樓書|港島南岸海盈山第4A期面積351至1847方呎 標準戶主攻兩房 新盤樓書|港島南岸海盈山第4A期面積351至1847方呎 標準戶主攻兩房 新盤樓書|港島南岸海盈山第4A期面積351至1847方呎 標準戶主攻兩房 新盤樓書|港島南岸海盈山第4A期面積351至1847方呎 標準戶主攻兩房 新盤樓書|港島南岸海盈山第4A期面積351至1847方呎 標準戶主攻兩房 新盤樓書|港島南岸海盈山第4A期面積351至1847方呎 標準戶主攻兩房 新盤樓書|港島南岸海盈山第4A期面積351至1847方呎 標準戶主攻兩房

全盤面積最細單位為第2B5G室,實用面積351方呎,一房間隔,連119方呎花園。標準單位面積最細為第2B座各標準樓層G室,實用面積389方呎,一房間隔。至於面積最大為第2B43A室,實用面積1,847方呎,四房間隔,另設531方呎平台、1,452方呎天台及83方呎梯屋。

項目設有138個車位,以今期432伙計算,車位與住戶比例為13

海盈山整個項目分為第4A期及第4B期,提供800伙,由兩座住宅大樓組成,兩座均設34層住宅樓層。第4A期的標準單位樓層的層與層之間高度約3.15米,而部分單位及特色單位更達約3.4米,空間感十足;第4A期預計關鍵日期為2025年3月15日。

新盤樓書|港島南岸海盈山第4A期面積351至1847方呎 標準戶主攻兩房 新盤樓書|港島南岸海盈山第4A期面積351至1847方呎 標準戶主攻兩房 新盤樓書|港島南岸海盈山第4A期面積351至1847方呎 標準戶主攻兩房 新盤樓書|港島南岸海盈山第4A期面積351至1847方呎 標準戶主攻兩房

ADVERTISEMENT

ad

恭喜你!獲取1分 !

更多積分任務