dadblk3 madblk3
adblk3
adblk3
地產
出版:2026-Jan-14 21:35
更新:2026-Jan-14 21:35

雅盈峰上樓書 提供99伙 四套房戶面積最大達2523呎|中環新盤

分享:
雅盈峰上樓書 提供99伙 四套房戶面積最大達2523呎|中環新盤

雅盈峰上樓書 提供99伙 四套房戶面積最大達2523呎|中環新盤

adblk4

盈大地產(432)及資本策略地產(497)合作發展的中環半山己連拿利36號住宅項目「雅盈峰」,今日(14日)正式上載售樓說明書。項目提供99伙住宅單位,主打三房或以上大宅,另設特色單位,迎合不同客人需要,預計關鍵日期為2026年6月30日。

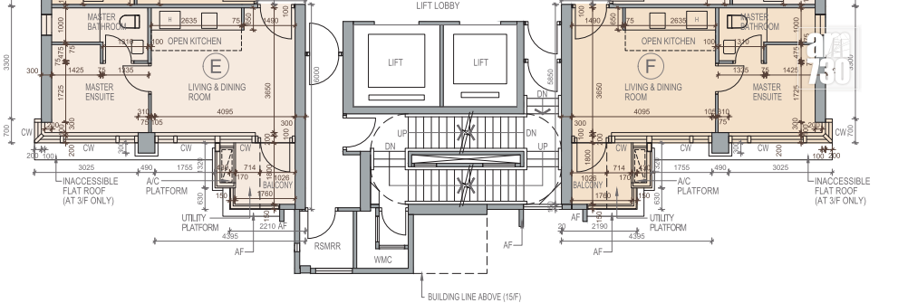
根據樓書顯示,項目樓高28層,實用面積由約380方呎至2,523方呎,標準戶型涵蓋一房至四房兩套,亦設特色戶。其中項目1523樓的B單位,屬三房兩套間隔,實用面積為1,074方呎,提供逾8米闊的橫廳,並連接「三合一露台」,可飽覽香港動植物公園及香港公園雙園延綿翠綠。間隔採用廳房同向設計,無論身處客飯廳或主人套房均可將香港動植物公園及香港公園雙園景緻盡收眼底。

adblk5

雅盈峰上樓書 提供99伙 四套房戶面積最大達2523呎|中環新盤 雅盈峰上樓書 提供99伙 四套房戶面積最大達2523呎|中環新盤 雅盈峰上樓書 提供99伙 四套房戶面積最大達2523呎|中環新盤 雅盈峰上樓書 提供99伙 四套房戶面積最大達2523呎|中環新盤 雅盈峰上樓書 提供99伙 四套房戶面積最大達2523呎|中環新盤 雅盈峰上樓書 提供99伙 四套房戶面積最大達2523呎|中環新盤 雅盈峰上樓書 提供99伙 四套房戶面積最大達2523呎|中環新盤 雅盈峰上樓書 提供99伙 四套房戶面積最大達2523呎|中環新盤 雅盈峰上樓書 提供99伙 四套房戶面積最大達2523呎|中環新盤 雅盈峰上樓書 提供99伙 四套房戶面積最大達2523呎|中環新盤 雅盈峰上樓書 提供99伙 四套房戶面積最大達2523呎|中環新盤 雅盈峰上樓書 提供99伙 四套房戶面積最大達2523呎|中環新盤 雅盈峰上樓書 提供99伙 四套房戶面積最大達2523呎|中環新盤 雅盈峰上樓書 提供99伙 四套房戶面積最大達2523呎|中環新盤 雅盈峰上樓書 提供99伙 四套房戶面積最大達2523呎|中環新盤 雅盈峰上樓書 提供99伙 四套房戶面積最大達2523呎|中環新盤 雅盈峰上樓書 提供99伙 四套房戶面積最大達2523呎|中環新盤 雅盈峰上樓書 提供99伙 四套房戶面積最大達2523呎|中環新盤 雅盈峰上樓書 提供99伙 四套房戶面積最大達2523呎|中環新盤 雅盈峰上樓書 提供99伙 四套房戶面積最大達2523呎|中環新盤 雅盈峰上樓書 提供99伙 四套房戶面積最大達2523呎|中環新盤 雅盈峰上樓書 提供99伙 四套房戶面積最大達2523呎|中環新盤 雅盈峰上樓書 提供99伙 四套房戶面積最大達2523呎|中環新盤

全盤面積最細的單位,為3至12樓E及F室,實用面積380方呎,屬一房一套間隔;全盤面積最大為31樓A室,實用面積2,523方呎,連258方呎台,為四房四套及儲物室連廁間隔。

全盤合共設有8伙特色戶,包括7伙連平台戶及1伙連天台戶。並於地庫1及2層設有合共39個停車位。

雅盈峰上樓書 提供99伙 四套房戶面積最大達2523呎|中環新盤 雅盈峰上樓書 提供99伙 四套房戶面積最大達2523呎|中環新盤

盈科大衍地產銷售及市務總監陳惠慈表示,項目於正式命名後,收到不少高端貴賓查詢,尤其對項目兼享動植物公園及香港公園雙園景致及信步即達中環核心的優越地理位段深感興趣。有見及此,決定今天正式上載售樓說明書。

adblk6

ADVERTISEMENT

ad

恭喜你!獲取1分 !

更多積分任務