dadblk3 madblk3
adblk3
adblk3
地產
出版:2022-Nov-21 17:25
更新:2022-Nov-21 17:25

油塘新盤|朗譽樓書曝光 面積最大1601方呎五房特色戶

分享:
油塘新盤|朗譽樓書曝光 面積最大1601方呎五房特色戶

油塘新盤|朗譽樓書曝光 面積最大1601方呎五房特色戶

adblk4

一手市況轉靜,不過仍有發展商繼續推出全新盤應市。由保利置業(119)與尚嘉控股合作發展的油塘朗譽今日(21)上載售樓說明書,保利置業(香港)銷售及市務部總監朱美儀表示,最快本周內公布首張價單,首批推出單位將不少於127伙,以一房及兩房為主。

她稱,定價會參考九龍東、將軍澳新盤,以及鐵路沿綫項目造價;而展銷中心及示範單位亦計劃於本周內開放予公眾參觀。

油塘新盤|朗譽樓書曝光 面積最大1601方呎五房特色戶

朱美儀表示,最快本周內公布首張價單,首批推出單位將不少於127伙,以一房及兩房為主。

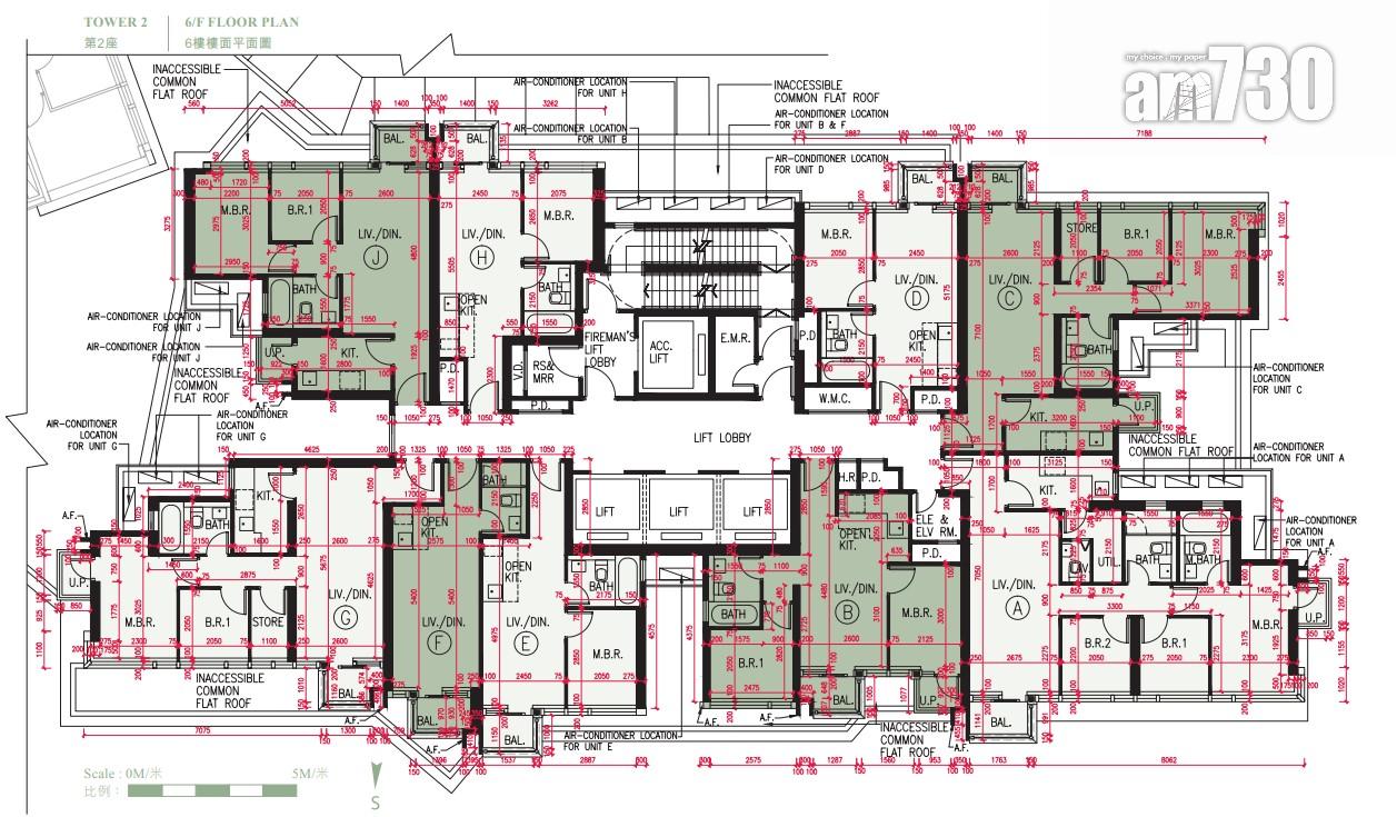
標準樓層每層911 3部升降機

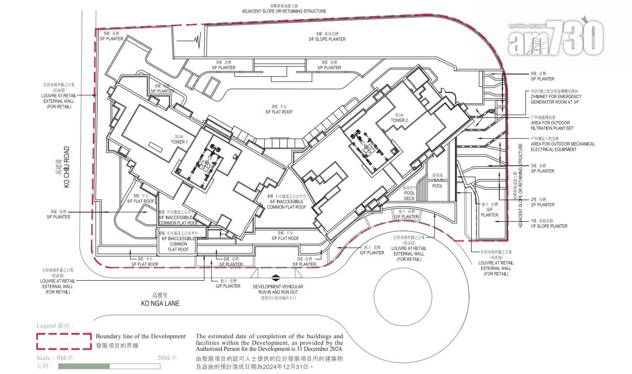
據樓書顯示,朗譽由2座住宅大樓組成,提供634伙,標準樓層每層911伙,設3部升降機。標準單位戶型涵蓋開放式至三房,實用面積介乎246730方呎。當中開放式佔63伙、一房佔285伙、兩房佔252伙,以及三房佔31伙;另設3伙特色單位,實用面積介乎7141,601方呎。

adblk5

全盤面積最細屬第2座標準樓層F室,實用面積246方呎,開放式間隔;面積最大則為第241A室,實用面積1,601方呎,另連429方呎平台,五房間隔,主人房及客廳各附連一個平台,主人房內設有衣帽間。

油塘新盤|朗譽樓書曝光 面積最大1601方呎五房特色戶 油塘新盤|朗譽樓書曝光 面積最大1601方呎五房特色戶 油塘新盤|朗譽樓書曝光 面積最大1601方呎五房特色戶 油塘新盤|朗譽樓書曝光 面積最大1601方呎五房特色戶 油塘新盤|朗譽樓書曝光 面積最大1601方呎五房特色戶 油塘新盤|朗譽樓書曝光 面積最大1601方呎五房特色戶 油塘新盤|朗譽樓書曝光 面積最大1601方呎五房特色戶 油塘新盤|朗譽樓書曝光 面積最大1601方呎五房特色戶 油塘新盤|朗譽樓書曝光 面積最大1601方呎五房特色戶 油塘新盤|朗譽樓書曝光 面積最大1601方呎五房特色戶 油塘新盤|朗譽樓書曝光 面積最大1601方呎五房特色戶 油塘新盤|朗譽樓書曝光 面積最大1601方呎五房特色戶 油塘新盤|朗譽樓書曝光 面積最大1601方呎五房特色戶

朗譽位處高超道29號,提供40個住宅停車位,住客會所總面積為9,763方呎。項目預計關鍵日期為2025331日,樓花期約28個月。

油塘新盤|朗譽樓書曝光 面積最大1601方呎五房特色戶

朗譽預計關鍵日期為2025年3月31日,樓花期約28個月。(資料圖片)

ADVERTISEMENT

立即更新 /下載AM730手機APP 體驗升級功能

ad

恭喜你!獲取1分 !

更多積分任務