dadblk3 madblk3
adblk3
adblk3
地產
出版:2023-Mar-01 08:00
更新:2023-Mar-01 08:00

新盤樓書|元朗雨後單位面積252至993方呎 標準層一層17伙

分享:
新盤樓書|元朗雨後單位面積252至993方呎 標準層一層17伙

新盤樓書|元朗雨後單位面積252至993方呎 標準層一層17伙

adblk4

由星星地產發展、位於元朗宏業西街21號雨後,突擊上載售樓說明書,料短期內推出應市。

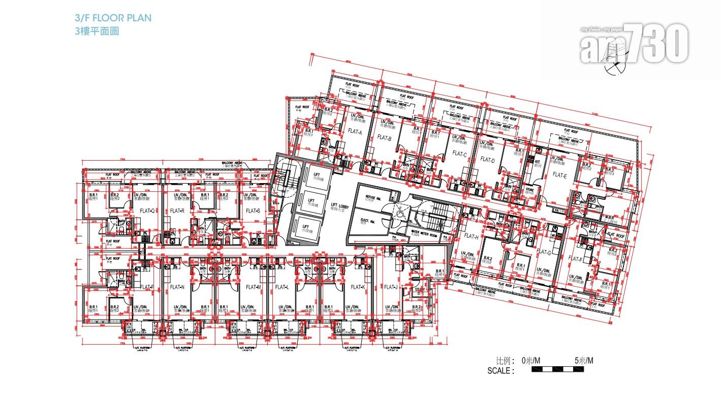
據樓書顯示,雨後屬單幢式物業,提供335伙,標準單位戶型涵蓋開放式至三房,另設連平台或天台特色單位。標準單位樓層每層設17伙,每層備有3部升降機。

3樓設有12伙連平台特色戶,實用面積介乎252679方呎,平台面積介乎33276方呎。頂層26樓設有14伙連天台特色戶,實用面積介乎294909方呎,天台面積介乎294803方呎;但除D室及H室外,其餘連天台單位均不設內置樓梯,住戶需使用公眾樓梯前往私家天台。

adblk5

新盤樓書|元朗雨後單位面積252至993方呎 標準層一層17伙 新盤樓書|元朗雨後單位面積252至993方呎 標準層一層17伙 新盤樓書|元朗雨後單位面積252至993方呎 標準層一層17伙 新盤樓書|元朗雨後單位面積252至993方呎 標準層一層17伙 新盤樓書|元朗雨後單位面積252至993方呎 標準層一層17伙 新盤樓書|元朗雨後單位面積252至993方呎 標準層一層17伙 新盤樓書|元朗雨後單位面積252至993方呎 標準層一層17伙 新盤樓書|元朗雨後單位面積252至993方呎 標準層一層17伙 新盤樓書|元朗雨後單位面積252至993方呎 標準層一層17伙

全盤面積最細為3H室,實用面積252方呎,開放式間隔,外連33方呎平台,單位採曲尺形設計;全盤面積最大為26D室,實用面積909方呎,為三房套連儲物室間隔,外連109方呎平台及803方呎天台。

項目設有28個住宅車位,預計關鍵日期為今年1231日,樓花期僅約10個月。

即睇元朗新盤雨後最新資訊 (House730)

新盤樓書|元朗雨後單位面積252至993方呎 標準層一層17伙

雨後預計關鍵日期為今年12月31日,樓花期僅約10個月。(資料圖片)

ADVERTISEMENT

ad

恭喜你!獲取1分 !

更多積分任務