薄扶林MOUNT POKFULAM上樓書 涉7幢洋房 面積最大逾4800呎|豪宅動態
宏安地產(1243)及錦華實業集團合作發展的西半山薄扶林道「MOUNT POKFULAM」突擊上載售樓說明書至一手住宅物業銷售資訊網。該盤提供7幢洋房,實用面積介乎3,654至4,810方呎,市場預計項目將以現樓形式推售。
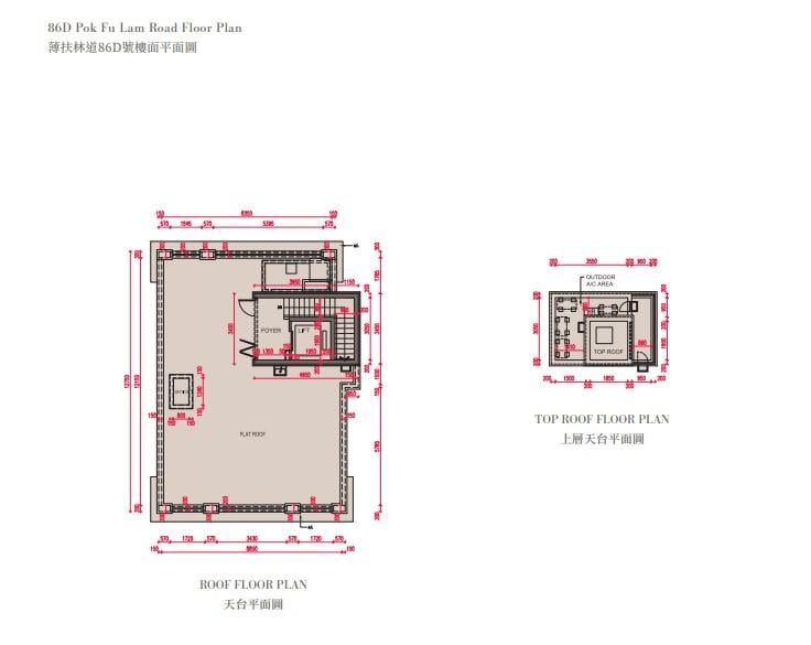
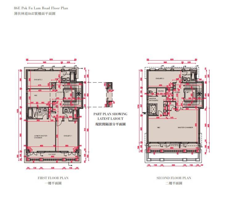
據樓書顯示,「MOUNT POKFULAM」7幢洋房分別位於薄扶林道86A號、86B號、86C號、86D號、86E號、86F號及86G號,每幢洋房設有私人花園、平台、獨立車庫、升降機、天台及私人泳池,洋房層與層之間高度約4.5米。當中面積最大洋房為薄扶林道86B號,實用面積4,810方呎,及955方呎天台。地下低層設有兩個車位,地下為客廳及飯廳,連接面積共1,223方呎的前後花園及泳池,1樓及2樓為寢區,五房設計,另附955方呎天台。
設軍事級保安系統
發展商早前表示,項目設三重保安防線,包括軍事級保安D-fence系統。據樓書顯示,每間獨立屋的升降機均提供人面識別系統、屋苑邊界提供電圍欄系統等。室內亦引進最先進的家居系統,注入現代智慧元素,包括車位附有電動車充電器;廚房備有食物垃圾處理機、冷凝器、暖碟機等;客廳及飯廳設空氣質素監測儀等。
發展商表示,項目先天地理位置優厚,前臨遼闊摩星嶺及卑路乍灣,背靠蔥翠龍虎山,豐饒綠意繚繞,與連綿山巒一脈相連,故以「MOUNT POKFULAM」命名,喻意居於此地,恰如傲立於山峰絕頂之上。
「MOUNT POKFULAM」設計以薄扶林悠久的歷史為靈感,揉合意大利巴洛克(Baroque)建築及現代簡約設計風格,外牆採用頂級進口天然石材,以重現巴洛克時期的建築精髓,盡顯大宅風範。項目交通便利,前往中環車程僅需10分鐘;往西九龍高鐵站、香港國際機場車程分別只需11及31分鐘,適合經常往返中港或出國的商人及專業人士,地利優勢更甚山頂及南區。
市場預計「MOUNT POKFULAM」將以現樓形式推售。


































